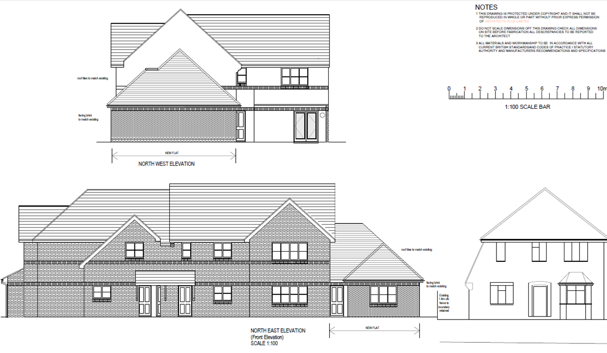
At Bridges Court on Lincoln Road, Worcester Park, a single-story side extension has been constructed to create a new dwelling specifically designed for elderly residents. This project is part of our ongoing commitment to providing comfortable, accessible, and well-designed living spaces for our residents.
Onsite Developments, the lead contractor for this project, oversaw all aspects of the construction to ensure the highest standards of quality and care. The new extension seamlessly integrates with the existing structure, offering a safe and modern living environment tailored to the needs of its future residents.
Location: Bridges Court, Lincoln Road, Worcester Park, KT4 8BL
Project type: Residential Development (Elderly Persons Dwelling)
Lead contractor: Onsite Developments











